Rapallo - Villa con Piscina in Località Sant'Ambrogio
Italiano
790.000 €

Rapallo - Villa con Piscina in Località Sant'Ambrogio

Villa in vendita • Zoagli - Via Cornice di Sant'Ambrogio, 100
Nel cuore della prestigiosa e luminosa frazione di Sant'Ambrogio, vi proponiamo una splendida villa indipendente di 276 mq, impreziosita da un rigoglioso giardino, ampie terrazze e una meravigliosa piscina. Situata in una posizione strategica, la proprietà permette di raggiungere in pochi minuti i principali punti di interesse, garantendo al contempo tranquillità e riservatezza assoluta.

Circondata su quattro lati da spazi verdi, la villa gode di un’esposizione ottimale che assicura ambienti luminosi e soleggiati in ogni stagione. L’accesso è comodo e diretto, grazie a un cancello carrabile che consente di arrivare con l’auto a pochi passi dall’ingresso.

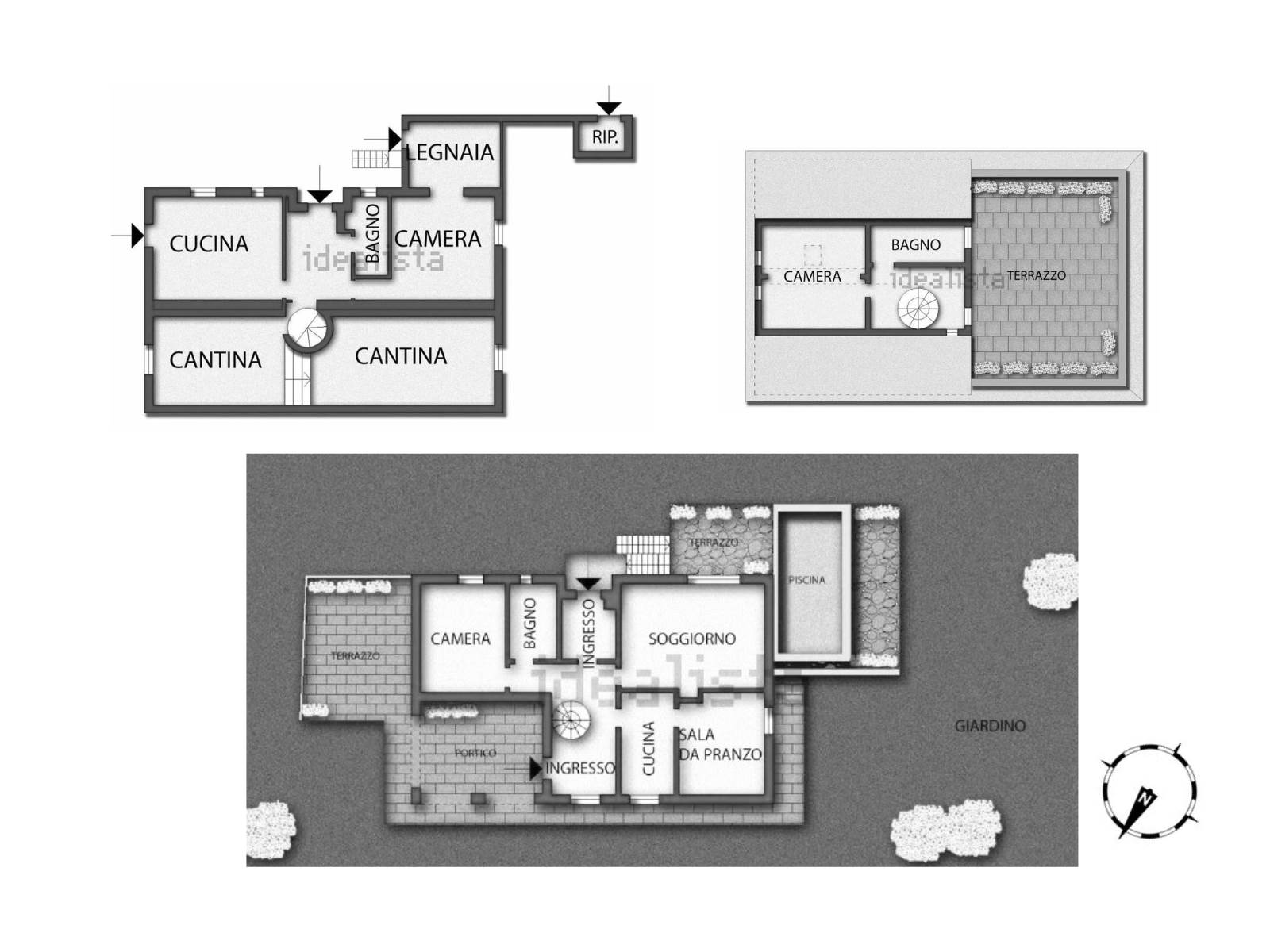
Distribuita su tre livelli, la residenza offre un’esperienza abitativa unica, con ambienti interni ed esterni perfettamente integrati. Al piano terra, un accogliente ingresso introduce a una grande taverna con cucina, perfetta per conviviali cene tra amici. Completano il livello una camera matrimoniale, un bagno finestrato e un’ampia cantina, ideale come dispensa o spazio di stoccaggio. Grazie a un’intercapedine isolante, questa zona è stata progettata per garantire massimo comfort ed efficienza energetica.

Il piano superiore, accessibile sia dall'interno che dall’esterno, ospita una luminosa cucina abitabile, una sala da pranzo, un elegante salone doppio con camino, uno studio, una spaziosa camera matrimoniale e un bagno finestrato. Salendo alla mansarda, troviamo due ulteriori locali, un bagno e l’accesso a una magnifica terrazza panoramica.

Gli spazi esterni rappresentano un vero valore aggiunto: ampie zone relax, un suggestivo portico, una grande cucina all’aperto con forno a legna e una splendida piscina con area solarium, perfetta per godersi momenti di puro benessere all’aria aperta.

La villa si presenta in condizioni eccellenti, pronta ad accogliere chi cerca un’abitazione di charme, dove comfort, privacy e bellezza si fondono armoniosamente.
Riferimento A 1014 Euro 790.000

Lo Studio Immobiliare Creuza de Ma si propone, fin da subito, di conoscere e ascoltare i desideri dei suoi clienti per capire al meglio le loro esigenze e coniugarle con il mercato immobiliare. Il suo più grande obiettivo è rendere soddisfatti e accolti i sogni di ognuno di loro, instaurando un rapporto di fiducia reciproca fondato sulla trasparenza.
Se vuoi affidare i tuoi desideri al nostro team, ti aspettiamo in Via Venezia 13/7 - Rapallo
Studio Immobiliare Creuza de Ma 0185.63.334 - 340.68.47.393 - 392.98.23.053
SITO www.cdmstudioimmobiliare.it - FB studioimmobiliarecreuzadema - IG @creuzademaimmobiliare
Caratteristiche principali
Codice
A 1014
Città
Zoagli
Categoria
Villa
Prezzo
790.000 €
Locali
8
Camere
4
Bagni
3
Mq
276
Posti auto
4
Terrazzi
1
mq Terrazzo
30
Classe energetica
G
Stato Immobile
Ottimo
Grado
Signorile
Posizione
Collina
Panorama
Vista Aperta
Orientamento
Nord Ovest Sud Est
Lati Liberi
4
Giardino
Privato
Arredi
Possibilità
Tipo Soggiorno
Doppio
Tipo Cucina
Abitabile
Riscaldamento
Autonomo
Tipo Riscaldam.
Caldaia
Tipo Impianto
Radiatori
Fonte Energetica
Metano
Acqua Calda
Autonoma
Infissi
Legno
Serramenti
Ottimo
Persiana
Persiana Legno
Pavim. Giorno
Ceramica
Pavim. Notte
Ceramica
Pavim. Cucina
Ceramica
Pavim. Bagno
Ceramica

Accessori: Camino, Cancello Elettrico, Passaggio Automobilistico, Passaggio Pedonale, Piscina, Porta Blindata, Ripostiglio, Tavolini Esterni

Mappa
Via Cornice di Sant'Ambrogio 100, Zoagli (GE)
Video
Richiedi informazioni
Invia
Condividi su
Cookie preference