Appartamento Ristrutturato - Zona Sant'Anna
Italiano
149.000 €

Appartamento Ristrutturato - Zona Sant'Anna

Appartamento in vendita • Rapallo - Via Savona, 4
In una zona vibrante e ottimamente servita, questo splendido appartamento ti accoglie strategicamente defilato dal rumore del traffico.
Recentemente ristrutturato in ogni sua parte impiantistica e finiture, l'immobile offre un comfort moderno unito a un tocco di charme unico: la pavimentazione originale in graniglia è stata sapientemente restaurata, donando un carattere distintivo e caldo agli ambienti.

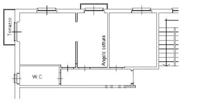
La disposizione è funzionale e accogliente: un comodo ingresso conduce alla luminosa camera matrimoniale e alla sala ampia e conviviale. Il balcone, con il suo gradevole affaccio, è il luogo ideale per un caffè. L'angolo cottura, grande e ben studiato, è integrato perfettamente e sfrutta ogni spazio. Completa il tutto il bagno finestrato con una doccia comoda e moderna.

Questa soluzione è libera subito, rendendola perfetta per essere abitata immediatamente o messa subito a reddito, vista la sua posizione strategica. Inoltre, la gestione è estremamente leggera grazie al riscaldamento autonomo e alle spese condominiali molto basse, con l'aggiunta della comodità data dalla disponibilità di alcuni posti auto condominiali a rotazione.
Una soluzione chiavi in mano che unisce stile, posizione imbattibile ed economicità di gestione.
Riferimento A 1066 Euro 149.000

Lo Studio Immobiliare Creuza de Ma si propone, fin da subito, di conoscere e ascoltare i desideri dei suoi clienti per capire al meglio le loro esigenze e coniugarle con il mercato immobiliare. Il suo più grande obiettivo è rendere soddisfatti e accolti i sogni di ognuno di loro, instaurando un rapporto di fiducia reciproca fondato sulla trasparenza.
Se vuoi affidare i tuoi desideri al nostro team, ti aspettiamo in Via Venezia 13/7 - Rapallo
Studio Immobiliare Creuza de Ma 0185.63.334 - 392.98.23.053 - 340.68.47.393
SITO www.cdmstudioimmobiliare.it - FB studioimmobiliarecreuzadema - IG @creuzademaimmobiliare
Caratteristiche principali
Codice
A 1066
Città
Rapallo
Categoria
Appartamento
Prezzo
149.000 €
Spese condominiali
600 € / anno
Locali
2
Camere
1
Bagni
1
Mq
53
Balconi
1
Mq Balcone
3
Piano
1
Classe energetica
G
Stato Immobile
Ristrutturato
Orientamento
Sud Ovest
Lati Liberi
2
Riscaldamento
Autonomo
Tipo Riscaldam.
Caldaia
Infissi
Alluminio Doppio Vetro
Serramenti
Nuovo
Persiana
Tapparella PVC
Pavim. Giorno
Graniglia
Pavim. Notte
Graniglia
Pavim. Cucina
Graniglia
Pavim. Bagno
Ceramica

Accessori: Ascensore, Doppi Vetri, Passaggio Automobilistico, Passaggio Pedonale

Mappa
Via Savona 4, Rapallo (GE)
Video
Richiedi informazioni
Invia
Condividi su
Cookie preference