Recco - Via Salvo d'Acquisto
Italiano
1.000.000 €

Recco - Via Salvo d'Acquisto

Porzione di Casa in vendita • Recco - Via Salvo d'Acquisto , 23
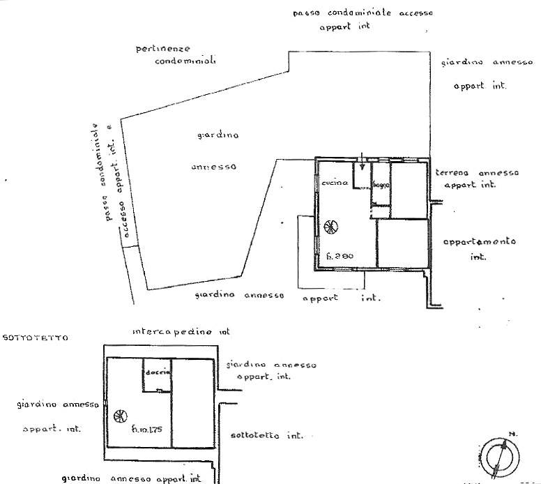
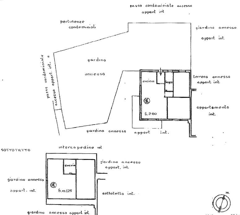
Recco - Megli - Appartamento con Vista Mare - Giardino e Box - Nella splendida cornice della collina di Megli, in esclusivo contesto privato, appartamento di circa 150 mq più due balconi, giardino, due fasce di terreno, box e due posti auto.
L'immobile è posizionato al primo e al secondo ed ultimo piano di una piccola palazzina in stile genovese formata da sole 4 unità abitative.
Internamente si sviluppa su due piani ed è composta al piano d'ingresso da: ingresso, ampia zona living con cucina a vista con accesso ai due balconi con vista mare, due camere e bagno con finestra.
Al piano superiore sono presenti due camere e un secondo servizio.
Completano la proprietà due posti auto scoperti ed un comodo box di 16 mq.
Riferimento A 1068 Euro 1.000.000

Lo Studio Immobiliare Creuza de Ma si propone, fin da subito, di conoscere e ascoltare i desideri dei suoi clienti per capire al meglio le loro esigenze e coniugarle con il mercato immobiliare. Il suo più grande obiettivo è rendere soddisfatti e accolti i sogni di ognuno di loro, instaurando un rapporto di fiducia reciproca fondato sulla trasparenza.
Se vuoi affidare i tuoi desideri al nostro team, ti aspettiamo in Via Venezia 13/7 - Rapallo
Studio Immobiliare Creuza de Ma 0185.63.334 - 392.98.23.053 - 340.68.47.393
SITO www.cdmstudioimmobiliare.it - FB studioimmobiliarecreuzadema - IG @creuzademaimmobiliare


Caratteristiche principali
Codice
A 1068
Città
Recco
Categoria
Porzione di Casa
Prezzo
1.000.000 €
Locali
6
Camere
4
Bagni
2
Mq
150
Box
1
Mq Box
16
Posti auto
2
Mq Giardino
150
Balconi
2
Mq Balcone
6
Piano
1
Classe energetica
G
175
Stato Immobile
Buono
Grado
Signorile
Posizione
Collina
Panorama
Vista Mare
Orientamento
Est Sud Ovest
Lati Liberi
3
Giardino
Privato
Arredi
Possibilità
Tipo Soggiorno
Salone
Tipo Cucina
A Vista
Riscaldamento
Autonomo
Tipo Riscaldam.
Caldaia
Tipo Impianto
Radiatori
Fonte Energetica
Metano
Acqua Calda
Autonoma
Raffrescamento
Split
Infissi
Legno
Serramenti
Buono
Persiana
Persiana Legno
Pavim. Giorno
Gres Porcellanato
Pavim. Notte
Parquet
Pavim. Cucina
Gres Porcellanato
Pavim. Bagno
Ceramica

Accessori: Aria Condizionata, Armadio a Muro, Cancello Elettrico, Doppi Vetri, Passaggio Automobilistico, Passaggio Pedonale, Porta Blindata, Tavolini Esterni

Mappa
Via Salvo d'Acquisto 23, Recco (GE)
Richiedi informazioni
Invia
Condividi su
Cookie preference