Rapallo - Savagna
Italiano
650.000 €

Rapallo - Savagna

Villa in vendita • Rapallo - Via Savagna , 70
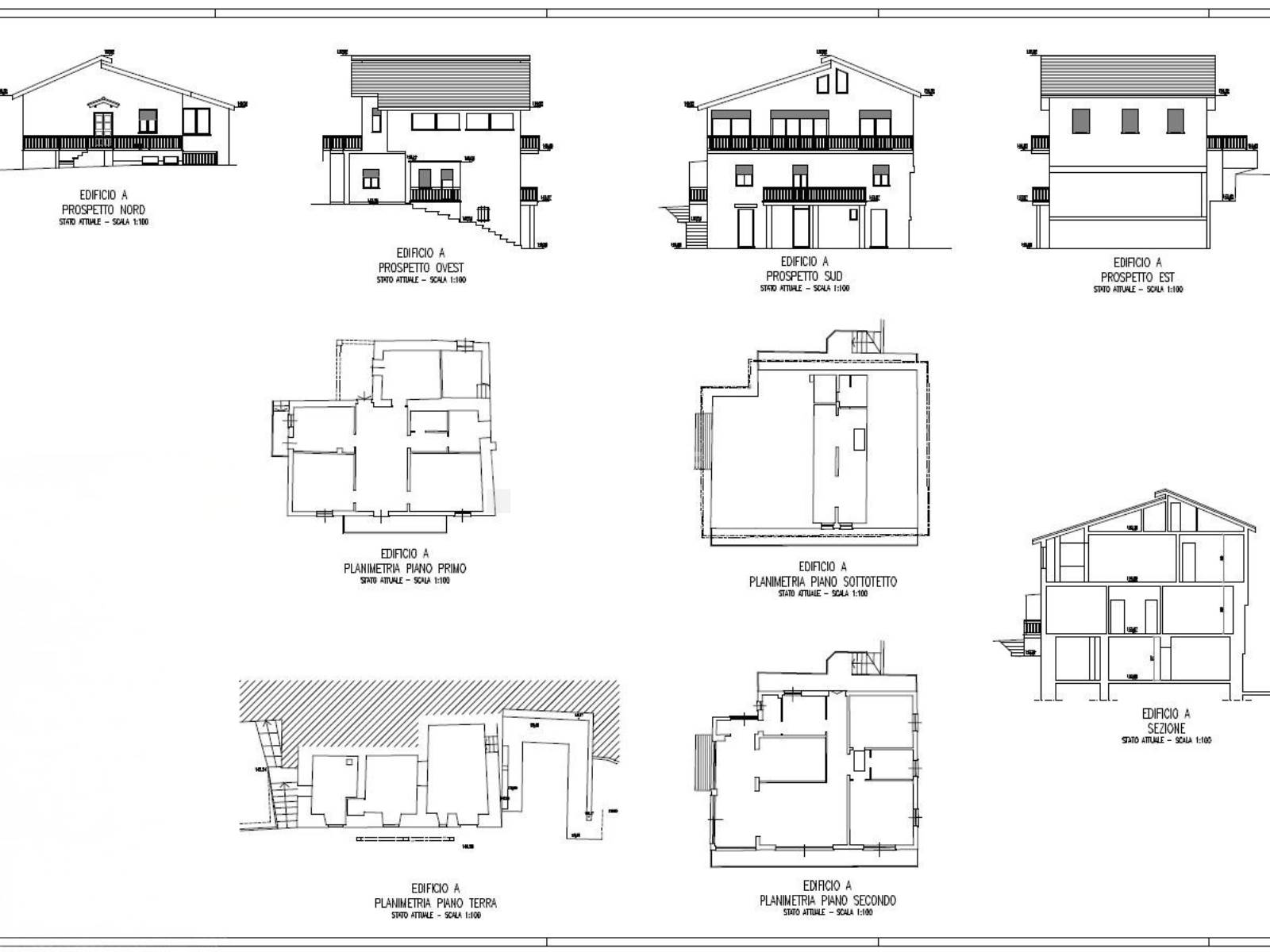
Rapallo - Casa Indipendente - Vista Mare - Nella collina di Savagna, a pochi minuti di auto dal centro, casa indipendente di 360 mq più 5700 mq di terreno con splendida vista mare e vista aperta sulla vallata.
La proprietà è attualmente suddivisa in tre appartamenti, tutti con accesso indipendente e libera su tutti e quattro i lati, garantendo privacy e luminosità.
Al piano terra si trova un ampio bilocale di 69 mq, composto da soggiorno con angolo cottura, una camera e bagno. Il piano intermedio è caratterizzato da: ingresso, soggiorno, cucina abitabile, due bagni e tre camere. L’ultimo piano, che si sviluppa a sua volta su due livelli ( piano di ingresso e sottotetto ) è composto da: ingresso, quattro camere, soggiorno, doppi servizi, un balcone e cucina abitabile.
Completa la proprietà due posti auto, quattro cantine ed un rustico presente all'interno del terreno.
La piacevole vista mare completa il fascino di questa dimora, rendendola un’opportunità davvero interessante.
Riferimento A 1074 Euro 650.000

Lo Studio Immobiliare Creuza de Ma si propone, fin da subito, di conoscere e ascoltare i desideri dei suoi clienti per capire al meglio le loro esigenze e coniugarle con il mercato immobiliare. Il suo più grande obiettivo è rendere soddisfatti e accolti i sogni di ognuno di loro, instaurando un rapporto di fiducia reciproca fondato sulla trasparenza.
Se vuoi affidare i tuoi desideri al nostro team, ti aspettiamo in Via Venezia 13/7 - Rapallo
Studio Immobiliare Creuza de Ma 0185.63.334 - 340.68.47.393 - 392.98.23.053
SITO www.cdmstudioimmobiliare.it - FB studioimmobiliarecreuzadema - IG @creuzademaimmobiliare
Caratteristiche principali
Codice
A 1074
Città
Rapallo
Categoria
Villa
Prezzo
650.000 €
Locali
10
Camere
8
Bagni
4
Mq
360
Posti auto
2
Mq Giardino
5700
Balconi
2
Mq Balcone
20
Classe energetica
G
Stato Immobile
Da Ristrutturare
Posizione
Collina
Panorama
Vista Mare
Orientamento
Nord Ovest Sud Est
Lati Liberi
4
Giardino
Privato
Arredi
Possibilità
Tipo Soggiorno
Salone
Tipo Cucina
Abitabile
Riscaldamento
Autonomo
Tipo Riscaldam.
Caldaia
Tipo Impianto
Radiatori

Accessori: Doppi Vetri, Passaggio Automobilistico, Passaggio Pedonale

Mappa
Via Savagna 70, Rapallo (GE)
Richiedi informazioni
Invia
Condividi su
Cookie preference