Rapallo - Via dei Palmizi
Italiano
257.000 €

Rapallo - Via dei Palmizi

4 o più locali in vendita • Rapallo - Via dei Palmizi
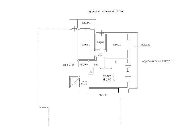
Rapallo - Appartamento con Posto Auto - A pochi minuti dal mare e dal centro storico, all'interno di un elegante complesso con piscina ed aree verdi, appartamento di circa 75 mq più terrazzino vivibile, balcone e prezioso posto auto.
L'immobile è posizionato al terzo piano con l'ascensore e internamente è composto da: ingresso, ampia zona living con cucina a vista e accesso alla terrazza vivibile, due camere matrimoniali con acceso al balcone, bagno con finestra e comodo ripostiglio.
L'appartamento è dotato di impianto elettrico certificato, porta blindata e infissi con doppio vetro e tapparelle elettriche.
Questo trilocale è perfetto sia come prima casa che come seconda casa al mare.
Riferimento B 2193 Euro 257.000

Lo Studio Immobiliare Creuza de Ma si propone, fin da subito, di conoscere e ascoltare i desideri dei suoi clienti per capire al meglio le loro esigenze e coniugarle con il mercato immobiliare. Il suo più grande obiettivo è rendere soddisfatti e accolti i sogni di ognuno di loro, instaurando un rapporto di fiducia reciproca fondato sulla trasparenza.
Se vuoi affidare i tuoi desideri al nostro team, ti aspettiamo in Via Venezia 13/7 - Rapallo
Studio Immobiliare Creuza de Ma 0185.63.334 - 392.98.23.053 - 340.68.47.393
SITO www.cdmstudioimmobiliare.it - FB studioimmobiliarecreuzadema - IG @creuzademaimmobiliare
Caratteristiche principali
Codice
B 2193
Città
Rapallo
Categoria
4 o più locali
Prezzo
257.000 €
Spese condominiali
2.200 € / anno
Locali
4
Camere
2
Bagni
1
Mq
75
Posti auto
1
Balconi
2
Piano
3
Classe energetica
G
192,2
Stato Immobile
Buono
Panorama
Vista Aperta
Lati Liberi
2
Giardino
Comune
Arredi
Possibilità
Tipo Soggiorno
Soggiorno
Tipo Cucina
A Vista
Riscaldamento
Centralizzato
Tipo Riscaldam.
Termo valvole

Accessori: Ascensore, Doppi Vetri, Parco Condominiale, Passaggio Pedonale, Piscina, Porta Blindata, Tavolini Esterni

Mappa
Via dei Palmizi , Rapallo (GE)
Richiedi informazioni
Invia
Condividi su
Cookie preference