Rapallo - Via Sciesa
Italiano
123.000 €

Rapallo - Via Sciesa

2 locali in vendita • Rapallo
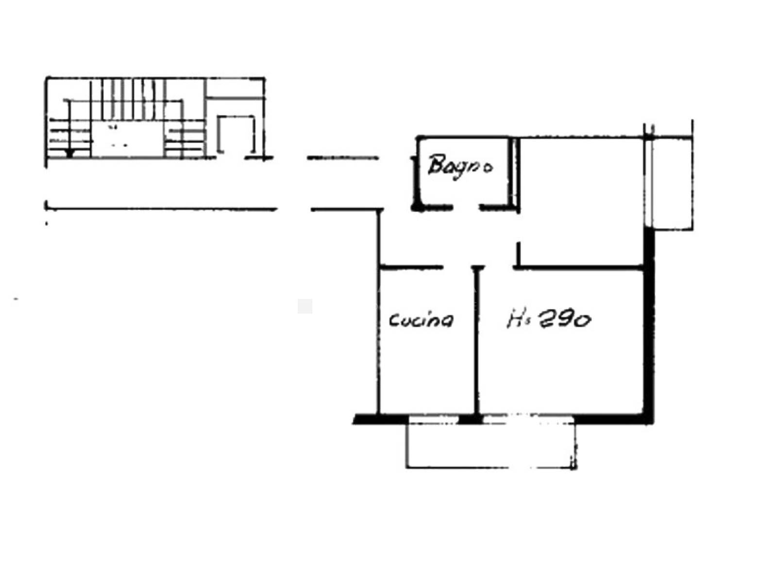
Rapallo - Ultimo Piano - Vista Aperta - Nelle vicinanze del campo da golf, al quarto ed ultimo piano con ascensore, appartamento di 54 mq più due balconi con vista panoramica.
Internamente l'immobile si presenta in buone condizioni generali ed è composto da: ingresso, soggiorno, cucina abitabile, camera e bagno.
Adiacente al supermercato Coop e comoda a servizi quali scuole, poste, trasporti pubblici ed autostrada, questo immobile è ideale sia come casa di residenza sia come investimento per le locazioni turistiche.
Riferimento B 2203 Euro 123.000

Lo Studio Immobiliare Creuza de Ma si propone, fin da subito, di conoscere e ascoltare i desideri dei suoi clienti per capire al meglio le loro esigenze e coniugarle con il mercato immobiliare. Il suo più grande obiettivo è rendere soddisfatti e accolti i sogni di ognuno di loro, instaurando un rapporto di fiducia reciproca fondato sulla trasparenza.
Se vuoi affidare i tuoi desideri al nostro team, ti aspettiamo in Via Venezia 13/7 - Rapallo
Studio Immobiliare Creuza de Ma 0185.63.334 - 392.98.23.053 - 340.68.47.393
SITO www.cdmstudioimmobiliare.it - FB studioimmobiliarecreuzadema - IG @creuzademaimmobiliare
Caratteristiche principali
Codice
B 2203
Città
Rapallo
Categoria
2 locali
Prezzo
123.000 €
Spese condominiali
1.200 € / anno
Locali
2
Camere
1
Bagni
1
Mq
54
Balconi
1
Mq Balcone
5
Piano
4
Classe energetica
G
175
Stato Immobile
Buono
Posizione
Periferia
Panorama
Vista Aperta
Orientamento
Sud Ovest
Lati Liberi
2
Giardino
Comune
Arredi
Possibilità
Tipo Soggiorno
Soggiorno
Tipo Cucina
Abitabile
Riscaldamento
Centralizzato
Tipo Riscaldam.
Termo valvole
Tipo Impianto
Radiatori
Infissi
Alluminio

Accessori: Ascensore, Passaggio Automobilistico, Passaggio Pedonale

Richiedi informazioni
Invia
Condividi su
Cookie preference